Description
Même si chacun a sa propre définition du confort, tout le monde sait apprécier le calme et la détente que procure une douche en position assise.
Ainsi, les banquettes wedi Sanoasa laissent place au repos et aux soins du corps.
La modularité des banquettes wedi Sanoasa permet une grande liberté dans la conception de l'espace bien-être. Les assises ainsi que les éléments porteurs peuvent donc être placés au gré de ses envies et adaptés au niveau de la forme et de la longueur.
Sanoasa banquette d‘angle
Le wedi Sanoasa banquette d‘angle est un banquette triangulaire autoportant qui est idéal pour les petites douches et permet une pause bien-être personnel. Avec sa construction étanche, stable et légère, il est facile à installer, aussi bien sur les surfaces rugueuses que sur les surfaces carrelées, et offre une valeur ajoutée à travers les générations.
- Étanche
- Poids faible
- Solide
- Modulable
- Montage facile et rapide
Contenu de la livraison :
- 1 banquette
- 2 platines de fixation
- 1 bande d'armature 3 mètres
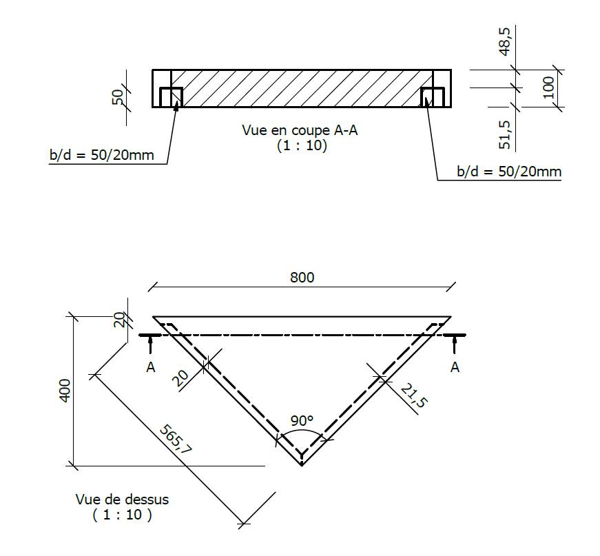
Schémas techniques :
- 600 × 300 × 100 mm Voir schéma 073784302
- 800 × 400 × 100 mm Voir schéma 073784402












